Квартиры для семьи от 65 кв.м.

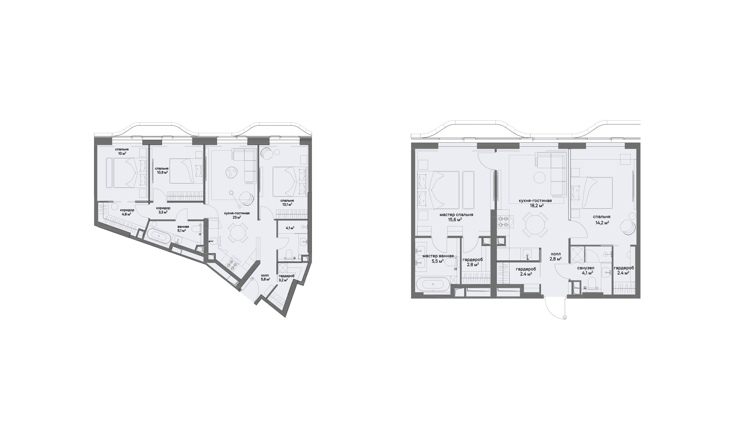
Объединение соседних квартир — один из способов получить необходимое количество спален для всех членов семьи. Подробнее уточняйте у менеджеров отдела продаж.

Объединение соседних квартир — один из способов получить необходимое количество спален для всех членов семьи. Подробнее уточняйте у менеджеров отдела продаж.